Официальное представительство в Беларуси
  • Сотрудничество
  • Отзывы
Официальное представительство в Беларуси
Shagma logo left
В категории
  • В категории
  • Люки под плитку
0 Сравнить
0 элемент / 0.00 р.
Меню
Shagma logo center
0 элемент / 0.00 р.
  • Главная
  • Каталог
    • Люки под плитку
  • Установка и монтаж
  • Наши работы
  • О компании
    • Отзывы
    • Вопросы и ответы
    • Условия доставки
    • Условия оплаты
    • Гарантия на товар
    • Сотрудничество
  • Контакты
  • +375 29 864 05 51Отдел продаж
  • Заказать проект
Нажмите, чтобы увеличить
Главная Люки под плитку Люк ревизионный / 600х1200 мм
Люк ревизионный / 600х1100 мм 1,307.20 р.
Назад к товарам
Люк ревизионный / 600х300 мм 991.80 р.

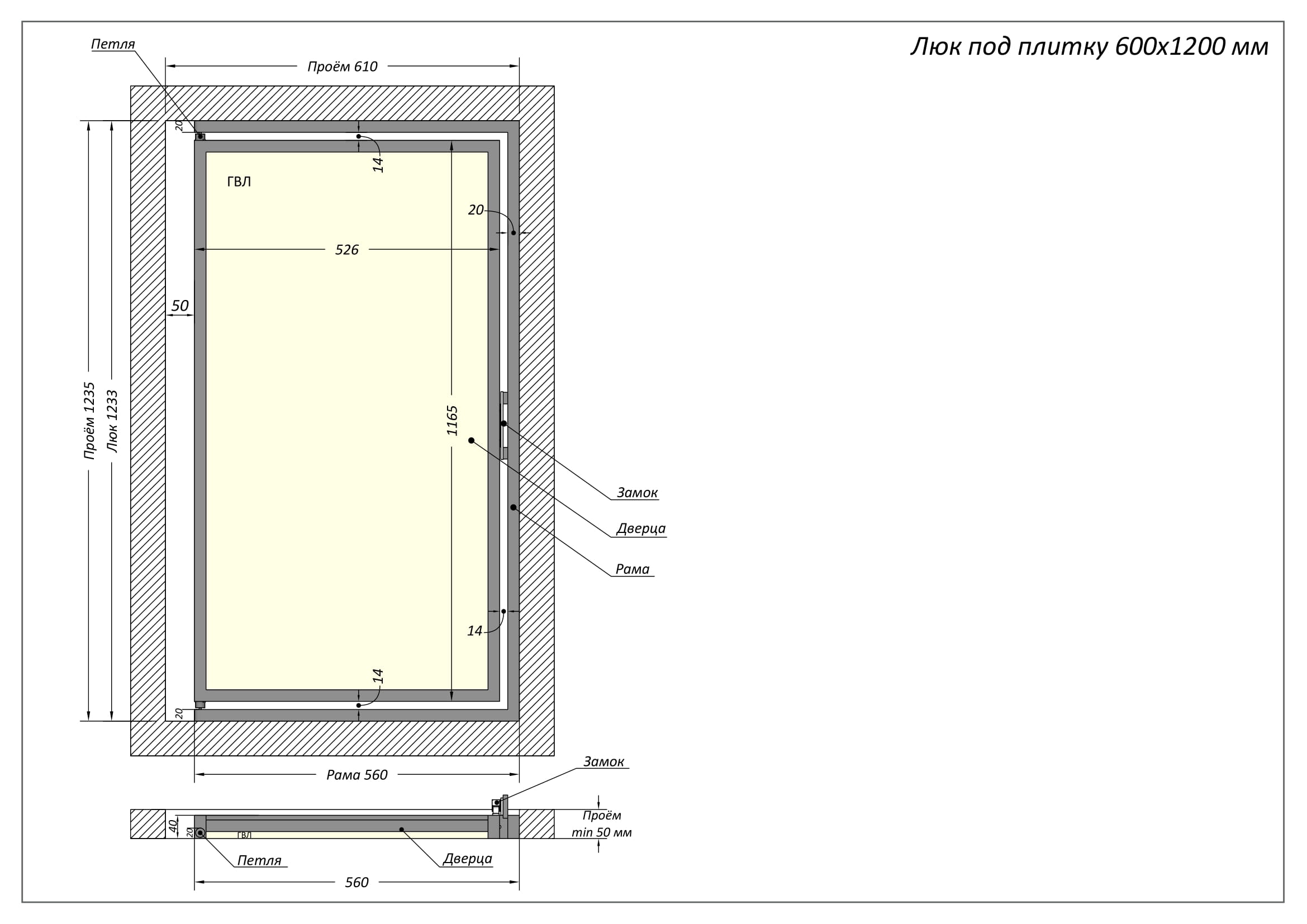
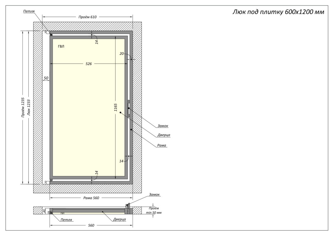
Люк ревизионный / 600х1200 мм

1,360.40 р.

Ширина плитки, мм — 600
Высота плитки, мм — 1200
Фактическая ширина люка — 560 мм
Фактическая высота люка — 1233 мм
Ширина проема — 610 мм
Высота проема — 1235 мм
Инструкция по установке и монтажу
Сравнить
Артикул: 36ЛС600х1200В Категория: Люки под плитку
Share:
  • Описание
  • Характеристики
  • Доставка и оплата
  • Установка и монтаж
Описание

Инструкция

и1
и2
и3
и4
и5
и6

Преимущества

- отсутствие провисания под тяжестью облицованного материала;
- отсутствие выгибания люка в форме линзы;
- отсутствие вытягивающих дверцу механизмов;
- люки любых размеров;
- люки любых форм;
- открывание лёгким нажатием со стороны замка либо со стороны петель;
- не требуется регулировка и обслуживание люка;
- индивидуальный размер люка производим в течение 24 часов;
- гарантия 10 лет на любой люк.

Видео

Характеристики
Ширина плитки, мм

600

Высота плитки, мм

1200

Фактическая ширина люка

560 мм

Фактическая высота люка

1233 мм

Ширина проема

610 мм

Высота проема

1235 мм

Диапазон ширины плитки

(575)-(700) мм

Диапазон высоты плитки

(1175)-(1230) мм

Вес, кг

21.5 кг

Вес люка в упаковке

22.5 кг

Тип

Настенный скрытый люк под плитку

Область применения

Доступ к инженерным коммуникациям

Схема открытия

Распашное открытие до 150* градусов

Способ открытия

Открывается легким нажатием со стороны замка или петли

Тип замка

Нажимной

Комплектующие

Замок, Инструкция, Магнит неодиновый, Ограничительные уголки

Гарантия

10 лет

Доставка и оплата
wd-ship-1

Самовывоз

Вы можете самостоятельно забрать ваш заказ с нашего магазина по адресу:
Беларусь, г. Минск, ул.Савицкого 20.

Режим работы:
ПН-ПТ - 09:00-17:00 (обед с 13:00-14:00),
СБ и ВС - выходной

Доставка по Беларуси

Доставка товара из Солигорска по Беларуси осуществляется Транспортной компанией Автолайт Экспресс. Тарифы и сроки доставки зависят от цен транспортной компании. Точная стоимость доставки будет известна при заказе.

После зачисления на наш расчётный счёт всей суммы по оплате заказа и доставки товар будет передан ТК для осуществления доставки по указанному Вами адресу. После передачи вашего заказа в транспортную компанию по электронной почте или по смс вы получаете извещение с указанием уникального номера отправления. По этому номеру вы отслеживаете вашу доставку.

Срок доставки зависит от конкретного региона получателя и условий работы транспортной компании, осуществляющей доставку.

Установка и монтаж
Инструкции по установке и монтажу люков доступны на странице Установка и монтаж

Похожие товары

Сравнить

Люк ревизионный / 400х1000 мм

Люки под плитку
1,189.40 р.
Ширина плитки, мм — 400
Высота плитки, мм — 1000
Фактическая ширина люка — 360 мм
Фактическая высота люка — 1033 мм
Ширина проема — 410 мм
Высота проема — 1035 мм
В корзину
Быстрый просмотр
Сравнить

Люк ревизионный / 300х400 мм

Люки под плитку
756.20 р.
Ширина плитки, мм — 300
Высота плитки, мм — 400
Фактическая ширина люка — 260 мм
Фактическая высота люка — 433 мм
Ширина проема — 310 мм
Высота проема — 435 мм
В корзину
Быстрый просмотр
Сравнить

Люк ревизионный / 500х700 мм

Люки под плитку
1,128.60 р.
Ширина плитки, мм — 500
Высота плитки, мм — 700
Фактическая ширина люка — 460 мм
Фактическая высота люка — 733 мм
Ширина проема — 510 мм
Высота проема — 735 мм
В корзину
Быстрый просмотр
Сравнить

Люк ревизионный / 400х500 мм

Люки под плитку
991.80 р.
Ширина плитки, мм — 400
Высота плитки, мм — 500
Фактическая ширина люка — 360 мм
Фактическая высота люка — 533 мм
Ширина проема — 410 мм
Высота проема — 535 мм
В корзину
Быстрый просмотр
Сравнить

Люк ревизионный / 400х800 мм

Люки под плитку
1,109.60 р.
Ширина плитки, мм — 400
Высота плитки, мм — 800
Фактическая ширина люка — 360 мм
Фактическая высота люка — 833 мм
Ширина проема — 410 мм
Высота проема — 835 мм
В корзину
Быстрый просмотр
Сравнить

Люк ревизионный / 600х900 мм

Люки под плитку
1,227.40 р.
Ширина плитки, мм — 600
Высота плитки, мм — 900
Фактическая ширина люка — 560 мм
Фактическая высота люка — 933 мм
Ширина проема — 610 мм
Высота проема — 935 мм
В корзину
Быстрый просмотр
Сравнить

Люк ревизионный / 200х300 мм

Люки под плитку
676.40 р.
Ширина плитки, мм — 200
Высота плитки, мм — 300
Фактическая ширина люка — 160мм
Фактическая высота люка — 333 мм
Ширина проема — 210 мм
Высота проема — 335 мм
В корзину
Быстрый просмотр
Сравнить

Люк ревизионный / 400х300 мм

Люки под плитку
919.60 р.
Ширина плитки, мм — 400
Высота плитки, мм — 300
Фактическая ширина люка — 360 мм
Фактическая высота люка — 333 мм
Ширина проема — 410 мм
Высота проема — 335 мм
В корзину
Быстрый просмотр

Произведем люк по индивидуальным размерам за 24 часа

Оформите заявку на сайте, мы свяжемся с вами в ближайшее время и ответим на все интересующие вопросы.

Заказать проект
Наши работы
Shagma logo left

Специалисты в производстве ревизионных люков

  • ШОУ-РУМ: г. Минск, ул.Савицкого 20
  • Телефон:+375 33 992 47 68
  • Телефон: +375 29 864 05 51
  • Email: info@shag-ma.by

Режим работы:
ПН-ПТ - 09:00-17:00 (обед с 13:00-14:00),
СБ и ВС - выходной

  • Подпишись на нас
Навигация
  • Главная
  • Каталог
  • Наши работы
  • Сотрудничество
  • О компании
  • Контакты
Продукция
  • Люки под плитку
  • Комплектующие
  • Каталог
  • Наши работы
  • Отзывы
Помощь
  • Вопросы и ответы
  • Условия оплаты
  • Условия доставки
  • Гарантия на товар
  • Политика конфиденциальности
ООО «ПРОФРЕМСТУДИЯ», УНП: 693296032. Свидетельство о государственной регистрации №693296032 выдано Солигорским райисполкомом 21 июня 2024 года. Юридический адрес: 223710, РБ, Минская обл., г.Солигорск ул. Ленина 10А-30. Интернет-магазин зарегистрирован в торговом реестре РБ 21 декабря 2022 г. под номером 548438. Скан свидетельства

2022 © Shagma. Все права защищены. При использовании материалов ссылка на сайт обязательна.
Методы оплаты
Закрыть
  • Главная
  • Каталог
    • Люки под плитку
  • Установка и монтаж
  • Наши работы
  • О компании
  • Сотрудничество
    • Условия доставки
    • Условия оплаты
  • Отзывы
  • Контакты
  • Сравнить
Корзина
закрыть
Магазин
0 элемент Заказ
0 Сравнить

Оставить отзыв